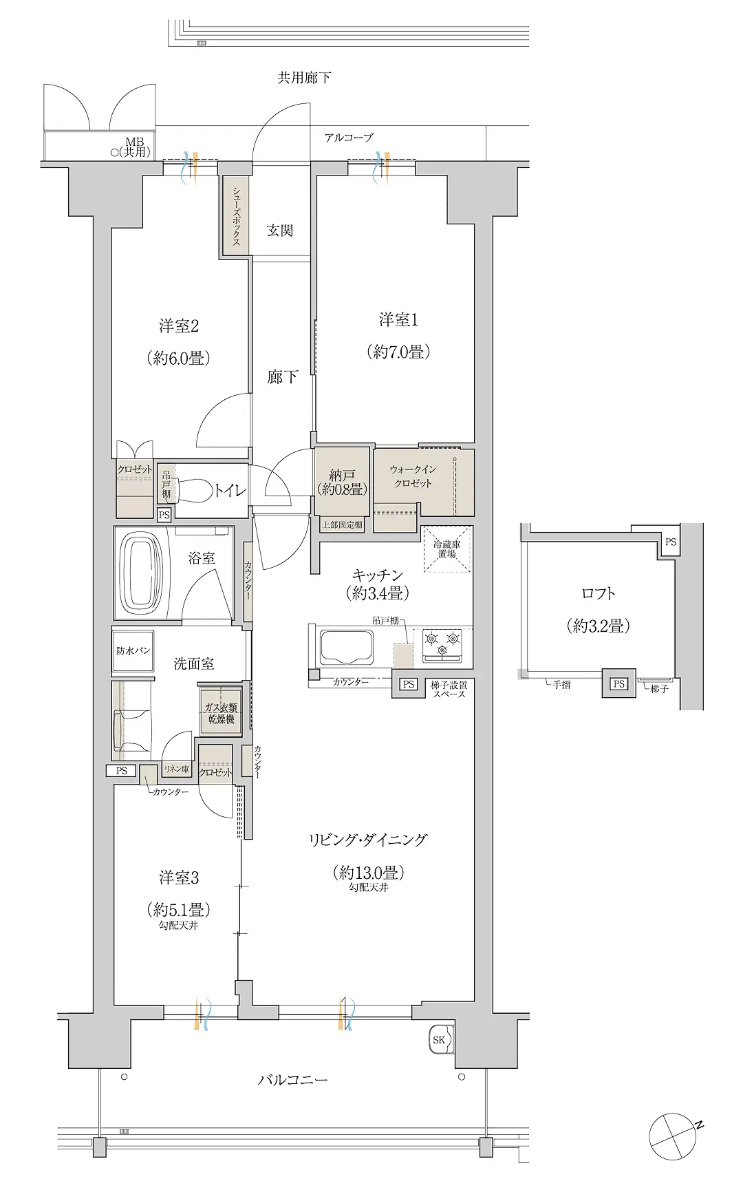
- 空間を立体的に使える
ロフト付プラン - 洋室3の引き戸を開放すると
18.1畳の広々空間に - ウォークインクロゼットや納戸など
収納充実
WIC:ウォークインクロゼット
N:納戸
SK:スロップシンク

WIC:ウォークインクロゼット
N:納戸
SK:スロップシンク

※掲載の間取は計画段階の設計図書を基に作成しており、販売時には壁・開口位置・収納の形状や畳数等が変更される場合があります。また、バルコニーの手摺等の形状は階によって異なります。
※方位記号には若干の誤差があります。
物件エントリーいただいた方限定で
最新情報や未公開間取りを閲覧いただけます。
まずは、物件エントリーからお申し込みください。